Green Concept Award 2021

Green Pre-Selection 2022

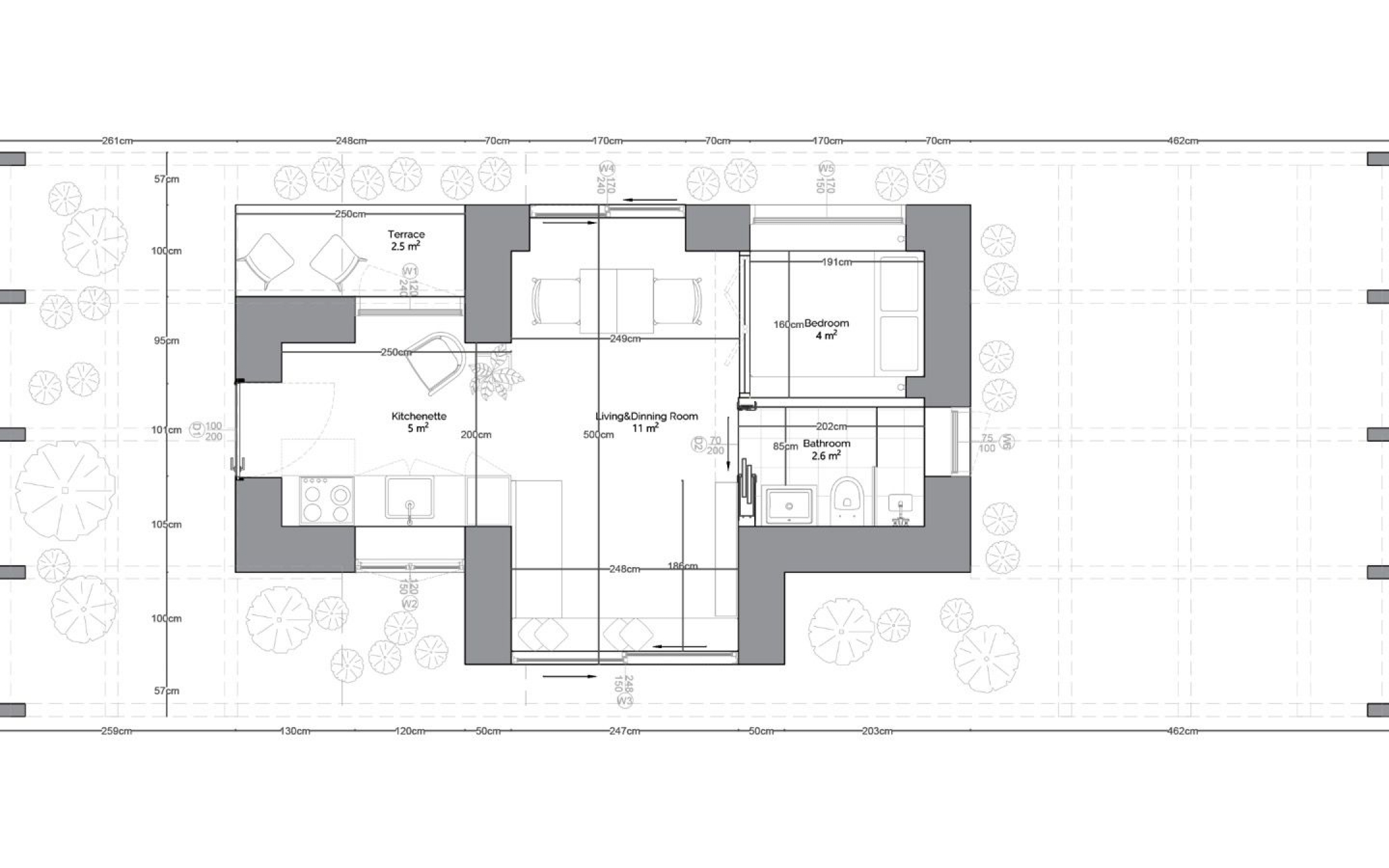
Activity Earth House Turkey

House as an activity instrument

Activity Earth House is a permanent house that will be used temporarily. The design aims to avoid the non-functionality of the house when it is not used by landlords. Therefore, the house is hidden within nature through a shelter roof. This roof could host various activities during different seasons of the year. House mainly is suitable for couples and small families that would like to spend time on the weekend in the forest. The main construction material is rammed earth, in this way, it is aimed at reducing carbon emission by using organic materials such as straws, earth.

Company/Institution: Universitat Politecnica de Catalunya
Prev Product All Products Next Product