Green Concept Award

Green Concepts

Activity Earth House

House as an activity instrument

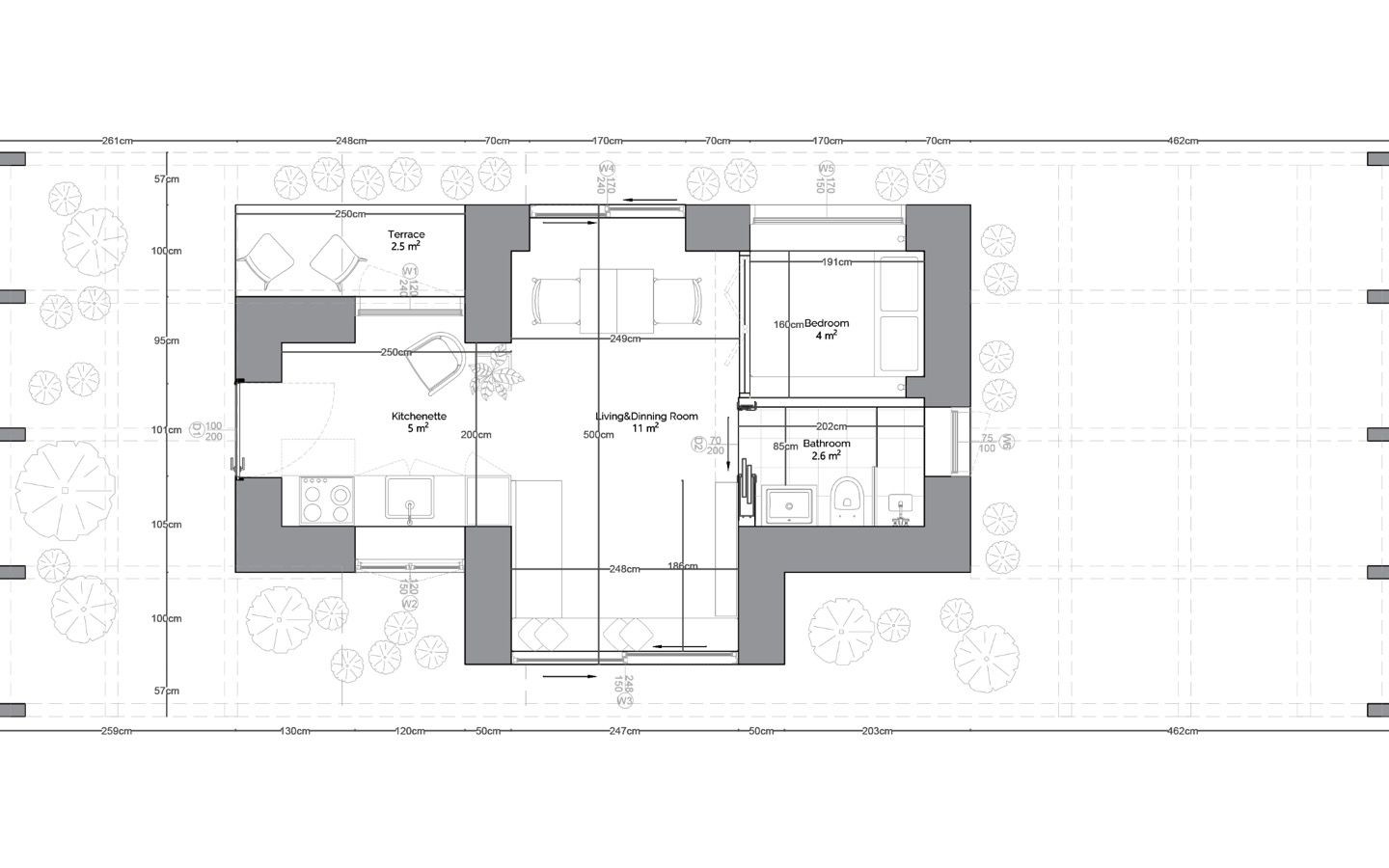
Activity Earth House is a permanent house that will be used temporarily. The design aims to avoid the non-functionality of the house when it is not used by landlords. Therefore, the house is hidden within nature through a shelter roof. This roof could host various activities during different seasons of the year. House mainly is suitable for couples and small families that would like to spend time on the weekend in the forest. The main construction material is rammed earth, in this way, it is aimed at reducing carbon emission by using organic materials such as straws, earth.


Company/Institution
Universitat Politecnica de Catalunya
Country
Turkey
Designer(s)
Kaan Servi
Prev Concept All Concepts Next Concept